North Shore Addition

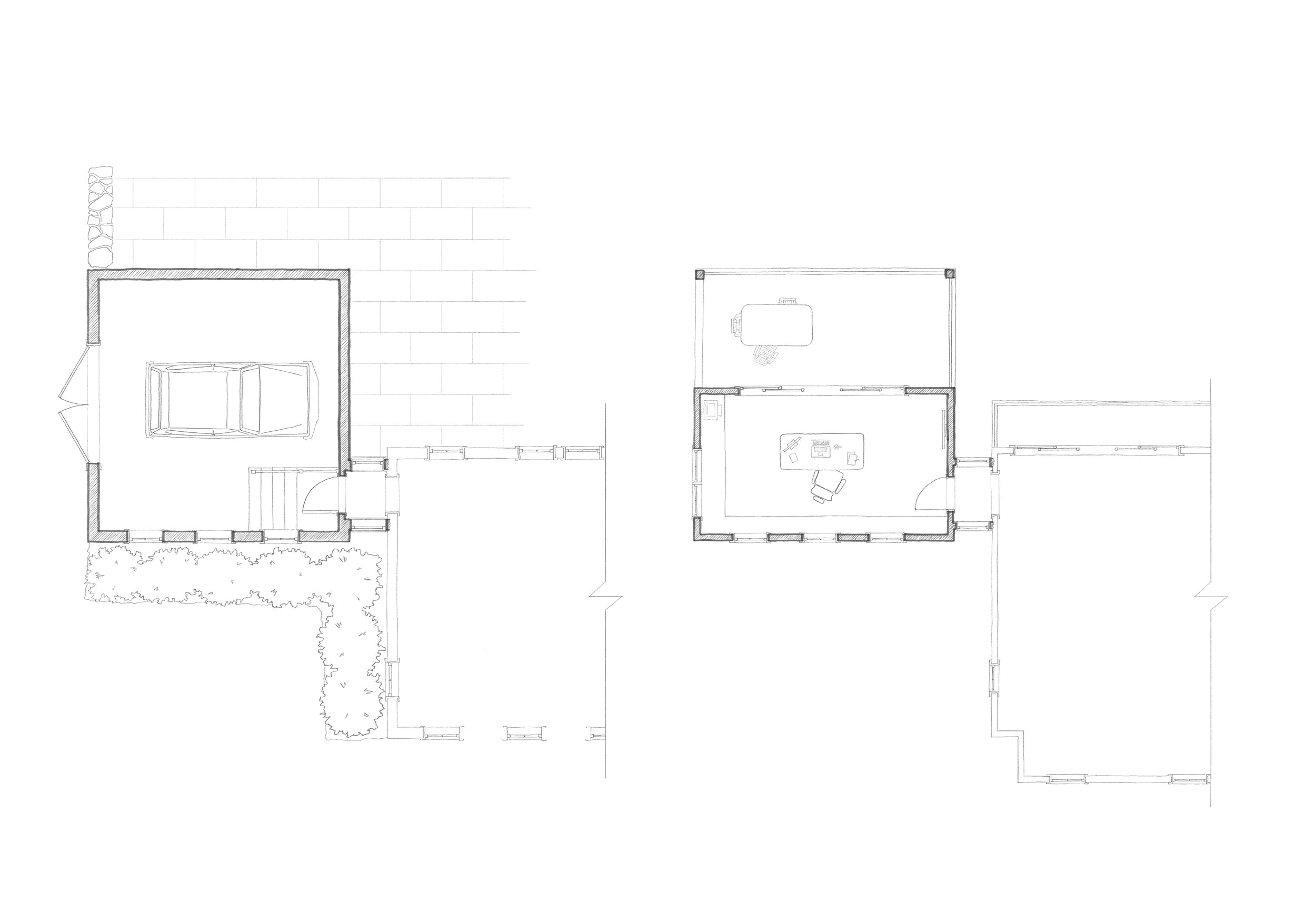
Planned for construction in the Fall of 2026, this project seeks to add a two-story wing to an existing coastal home, connected by a glass breezeway that highlights the ever-changing light and views. The ground floor will house a garage, while the upper level will become a private office opening out to a covered deck and ocean beyond.

Previous
Previous

The Shop