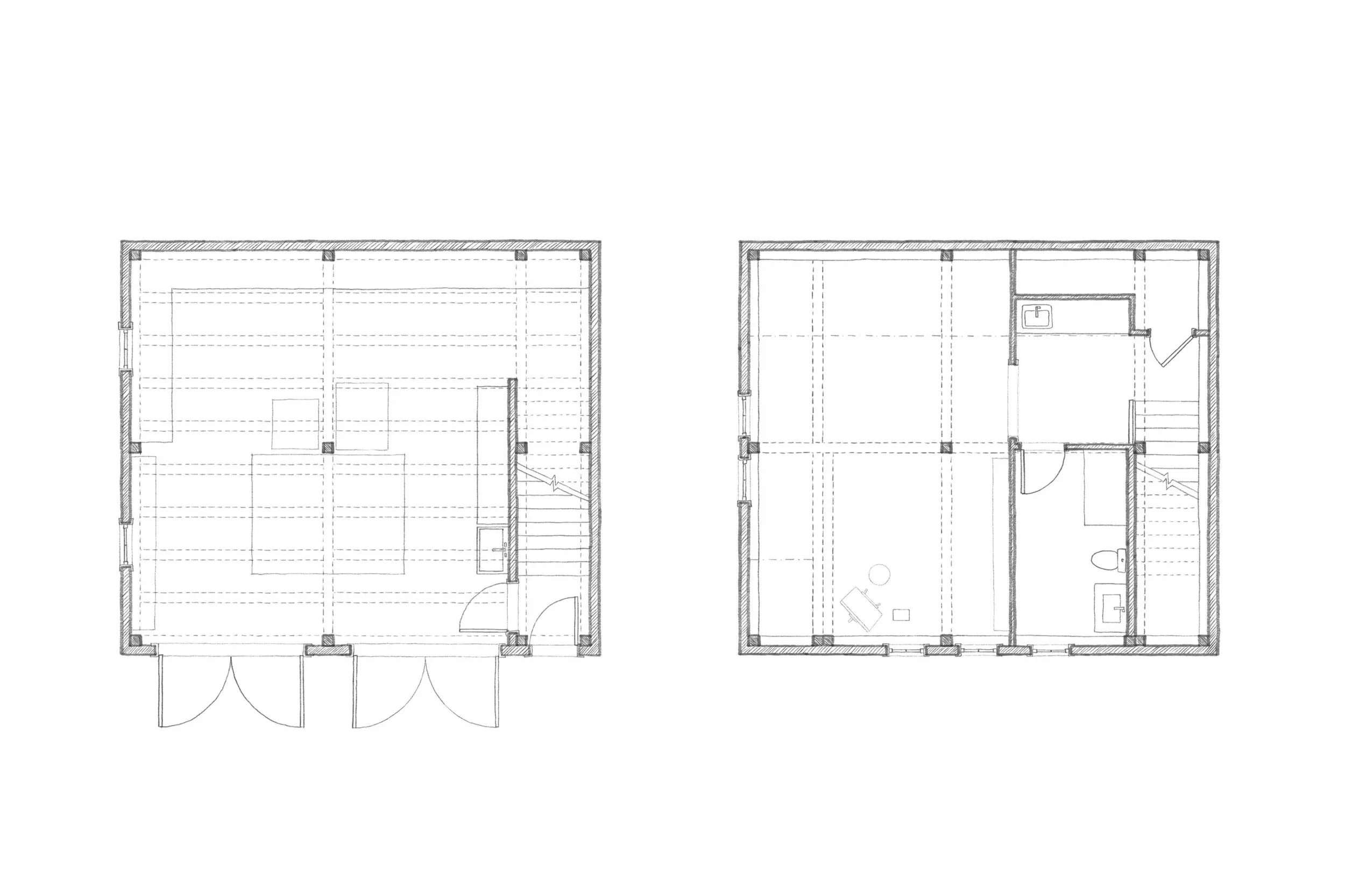
The Shop

Slated for construction in Spring of 2026, this new workshop and artist studio is designed as a creative retreat for a couple nearing retirement. Compact yet open, the building will offer light-filled spaces and flexible work areas, encouraging a new chapter of inspired living.

Previous
Previous

Hilltop Summer Home

Next
Next

North Shore Addition